Sau thành công tòa A1, A2 với lượng giao dịch cực lớn Chủ đầu tư Vingroup tiếp tục cho ra mắt tòa A3 The Arcadia tại Vinhomes Gardenia Mỹ Đình với nhiều ưu điểm vượt trội cùng chính sách bán hàng cực kỳ hấp dẫn.
THÔNG TIN TÒA A3 CHUNG CƯ VINHOMES GARDENIA
+Tổng số tầng tòa A3: 39 tầng
+ Số tầng căn hộ: 37 tầng
+ Loại căn hộ: Căn hộ 1 tầng và Căn hộ thông tầng (duplex)
+ Số căn hộ: 741 căn hộ
+ Số căn/ tầng điển hình:
– Tầng 3: 21 căn/ tầng
– Tầng 4 – tầng 39: 20 căn/ tầng
+ Diện tích căn hộ: Từ 56,6 m2 – 146,8 m2.
+ Số phòng ngủ: Từ 1 đến 4 phòng ngủ.
+ Hướng căn hộ: hướng view trực diện quảng trường; hướng chính bể bơi trung tâm cao cấp, tiếp giáp sân chơi tennis, sân chơi trẻ em, vườn xuân, và đường chạy bộ…
DOWNLOAD BẢNG GIÁ MỚI NHẤT TÒA A3 VINHOMES GARDENIA MỸ ĐÌNH
ƯU ĐIỂM VƯỢT TRỘI CỦA TÒA A3 THE ARCADIA TẠI VINHOMES GARDENIA
Là tòa cao ốc cuối cùng của dự án Vinhomes Gardenia Mỹ Đình, tòa A3 The Arcadia sở hữu những ưu điểm vượt trội mà tòa A1 và A2 không có.
Nội Dung:
TÓM TẮT
- 1 Mật độ sàn thấp
- 2 Thiết kế căn hộ hướng Đông Bắc view trực diện quảng trường
- 3 Hệ thống bể bơi 4 mùa độc nhất tại khu đô thị
- 4 MẶT BẰNG TÒA A3 THE ARCADIA TẠI VINHOMES GARDENIA
- 5 THIẾT KẾ NỔI BẬT TẠI TÒA A3 THE ARCADIA VINHOMES GARDENIA
- 6 NỘI THẤT ĐẲNG CẤP TỚI TỪNG CHI TIẾT
- 7 ƯU ĐIỂM CÁC LOẠI HÌNH CĂN HỘ TẠI TÒA A3 THE ARCADIA
Mật độ sàn thấp
Hầu hết cư dân khi lựa chọn căn hộ chung cư thì đều muốn tìm một căn hộ chung cư cao cấp có mật độ xây dựng thấp, đặc biệt là mật độ xây dựng tại mỗi sàn. Bởi lẽ, càng thưa thì việc di chuyển đi lại của cư dân an cư tại đó càng thuận tiện.

Mặt bằng tòa A3 The Arcadia tại Vinhomes Gardenia Mỹ Đình
Tổng số căn hộ tại tòa A3 là 741 căn hộ nhưng tòa nhà có 3 sảnh thang máy với tổng số thang là 15 thang.
Mật độ trung bình trên 1 tháng là 50 căn ( Mật độ thang máy siêu thấp)
Thiết kế căn hộ hướng Đông Bắc view trực diện quảng trường
Thiết kế thông minh giúp các căn hộ tại tòa A3 The Arcadia có tầm nhìn đa dạng: Hướng quảng trường, bể bơi, sân tennis, sân chơi trẻ em, vườn xuân, đường chạy bộ,…

Tòa A3 The Arcadia nhìn trực diện quảng trường cùng bể bơi
Trong đó, phải đặc biệt để ý tới là những căn hộ được thiết kế hướng Đông Bắc. Đây là căn hộ có view trực diện ra quảng trường giúp cư dân có thể bao quát gần tất cả các hoạt động đang diễn ra tại quảng trường khu đô thị Vinhomes Gardenia Mỹ Đình. Đây thực sự là một lợi thế mà nhiều căn hộ tại hai tòa A1 và A2 không có được.
Hệ thống bể bơi 4 mùa độc nhất tại khu đô thị

Không chỉ sở hữu tầm nhìn đẹp, mật độ xây dựng thấp, không khí thanh bình, tòa căn hộ A3 The Arcadia còn sở hữu tầm hệ thống hồ bơi 4 mùa độc nhất mà tòa A1 và A2 không có. Sở hữu căn hộ tại tòa A3 The Arcadia tại Vinhomes Gardenia bạn chỉ cần vài bước chân là có thể thỏa sức vẫy vùng và đắm mình trong làn nước xanh mát của bể bơi 4 mùa.
MẶT BẰNG TÒA A3 THE ARCADIA TẠI VINHOMES GARDENIA
———————–
Mặt bằng tòa A3 The Arcadia tại Vinhomes Gardenia Mỹ Đình sở hữu nhiều ưu điểm vượt trội như: đa dạng về loại hình căn hộ; thiết kế căn hộ thông minh, linh hoạt giữa các khu chức năng,… tạo nên sự khoa học, tiện nghi cho cuộc sống của bạn. Cùng khám phá mặt bằng tòa A3 qua những hình ảnh tổng quan dưới đây:
* Mặt bằng tổng thể tòa A3
+ Thiết kế 1: Mặt bằng tầng 3 tòa A3 Vinhomes Gardenia Mỹ Đình

Mặt bằng tầng 3 tòa A3 The Arcadia tại Vinhomes Gardenia Mỹ Đình
+ Thiết kế 2: Mặt bằng tầng 4 đến tầng 39 tòa A3 Vinhomes Gardenia Mỹ Đình

Mặt bằng tòa A3 The Arcadia tại Vinhomes Gardenia từ tầng 4 – tầng 39
–
THIẾT KẾ NỔI BẬT TẠI TÒA A3 THE ARCADIA VINHOMES GARDENIA
—————————-
Thừa kế và phát huy những ưu điểm vượt trội từ dự án, tòa A3 mang trong mình nhiều ưu điểm nổi bật về thiết kế giúp cư dân Khách hàng yêu mến không thôi với dòng sản phẩm này. Dưới đây là những nét nổi bật trong tòa nhà!
+ Phong cách thiết kế Singapore mang dấu ấn về một khu đô thị sinh thái mang bầu không khí TRONG LÀNH, THOÁNG ĐÃNG cho cư dân.
+ Thiết kế ĐA DẠNG VỀ LOẠI HÌNH CĂN HỘ giúp cư dân có nhiều lựa chọn hơn, đáp ứng đầy đủ các nhu cầu của Khách hàng.
+ Lối thiết kế XẺ KHE thông minh, linh hoạt giữa các khu chức năng tạo ra độ thông thoáng cho căn hộ, tận dụng tối đa nguồn năng lượng của thiên nhiên và tiết kiệm chi phí cho chủ nhân căn hộ.
+ Sự khéo léo trong cách sắp xếp giúp 100% các căn hộ tại tòa A3 The Arcadia đều sở hữu tầm nhìn vượt trội, không bị che lấp bởi các căn hộ bên cạnh.
+ Mật độ thang máy mỗi tầng cao (12 thang máy/ tầng) giúp cư dân dễ dàng di chuyển lên xuống, tiết kiệm thời gian mà không phải chờ, đặc biệt là giờ cao điểm. Hơn thế, hệ thống thang máy được lắp đặt đều là hệ thống thang máy hiện đại hàng đầu Việt Nam hiện nay.
NỘI THẤT ĐẲNG CẤP TỚI TỪNG CHI TIẾT
————————–
Điểm nhấn làm nên giá trị của căn hộ chung cư cao cấp ở tòa A3 The Arcadia tại Vinhomes Gardenia Mỹ Đình còn là hệ thống nội thất đẳng cấp, được Chủ đầu tư Vingroup chú trọng và phát triển tới từng chi tiết trong căn hộ.

Tất cả các yếu tố nhỏ như: sàn nhà, tường, cửa đi, cửa sổ, bếp, thiết bị phòng về sinh; hệ thống tủ; thiết bị điện; hệ thống chuông cửa,… đều được trang bị với những vật liệu chất lượng và được thiết kế theo phối hợp hài hòa về màu sắc, chất liệu như: gỗ công nghiệp cao cấp; ceramic cao cấp, chống trơn; sơn nước 2 lớp dành cho các phòng khách, phòng ngủ, phòng ăn, lối đi; hệ thống kính an toàn, khung nhôm sơn tĩnh điện, cửa gỗ công nghiệp đã qua xử lý bề mặt; khóa cửa thông phòng kiểu dáng hiện đại; khóa cử với tính năng kiểm soát hiện đại; đá nhân tạo cao cấp; bếp từ; chậu rửa 2 bồn; máy hút mùi,… được lắp đặt đầy đủ tạo ra môi trường sống tiện nghi hàng đầu cho cư dân sinh sống tại đây.
ƯU ĐIỂM CÁC LOẠI HÌNH CĂN HỘ TẠI TÒA A3 THE ARCADIA
—————————-
741 căn hộ/ 39 tầng tòa A3 The Arcadia tại Vinhomes Gardenia được thiết kế với các loại hình căn hộ khác nhau, từ 1 phòng ngủ – 4 phòng ngủ. Mỗi một loại hình căn hộ đều sở hữu ưu điểm riêng và phù hợp với từng đối tượng khách hàng khác nhau.
* Căn hộ 1 phòng ngủ:
Số lượng: 76 căn hộ
Diện tích sàn xây dựng: 55,1m2 – 60,6m2
Những căn hộ 1 phòng ngủ nhỏ xinh có diện tích từ 55,1 m2 – 60,06 m2 là khoảng diện tích vừa tầm thích hợp cho những Khách hàng yêu thích cuộc sống độc thân một mình hoặc dành cho những cặp vợ chồng trẻ mới cưới muốn tận hưởng hạnh phúc trọn vẹn 2 người.
Mặc dù diện tích nhỏ nhưng căn hộ được thiết kế đầy đủ tiện ích, các vật liệu nội thất đều thuộc tiêu chuẩn Vinhomes – 5 sao. Cư dân sở hữu căn hộ 1 phòng ngủ tất nhiên cũng được hưởng những đặc quyền dành cho cư dân Vinhomes Gardenia Mỹ Đình là hưởng thụ hệ thống tiện ích & dịch vụ cao cấp tại khu đô thị.
* Căn hộ 2 phòng ngủ:
Số lượng: 407 căn
Diện tích: 80,03 m2 – 97,6 m2
Đối với những gia đình từ 3 – 4 người thì căn hộ 2 phòng ngủ ở tòa A3 The Arcadia tại Vinhomes Gardenia chính là lựa chọn tuyệt vời. Được thiết kế khéo léo và tinh tế, những căn hộ 2 phòng ngủ mang đến không gian sống trong lành, ấm áp, tiện nghi, là môi trường sống lý tưởng cho những gia đình nhỏ muốn xây dựng tổ ấm ngập tràn hạnh phúc.
* Căn hộ 3 phòng ngủ
Số lượng: 185 căn
Diện tích: 104,7 m2 – 123,7m2
Đối với gia đình có từ 4 – 6 người thì căn hộ 3 phòng ngủ ở tòa A3 The Arcadia tại Vinhomes Gardenia chính là lựa chọn hoàn hảo. Thiết kế trên cùng một mặt sàn giúp các thành viên trong gia đình được sống trong cùng một không gian – tạo điều kiện lý tưởng để bồi dưỡng tình cảm giữa các thành viên trong gia đình.
Đối với những gia đình đa thế hệ nhất là khi có người già thì Vinhomes Gardenia Mỹ Đình chính là nơi an cư, nghỉ ngơi không đâu sánh bằng. Không chỉ sở hữu môi trường sống trong lành tốt cho sức khỏe Gardenia còn hội tụ những điều kiện tốt nhất tạo điều kiện cho những người cao tuổi được tiêu khiển thời gian như: dạo bộ quanh công viên, tập dưỡng sinh ở khu vực sinh hoạt cộng đồng,…
* Căn hộ 4 phòng ngủ:
Số lượng: 37 căn
Diện tích: 146.9 m2
Đối với những gia đình đông người, 3 phòng ngủ vẫn chưa đủ thì 4 phòng ngủ chắc hẳn là đáp án mà Khách hàng đang tìm kiếm.
Đặc biệt, nhờ vào các lợi thế như: Diện tích lớn, tầm nhìn ngoạn mục (view trực diện bể bơi, quảng trường và cả sân vận động Mỹ Đình). Chính điều này là trở thành ĐIỂM NHẤN DỰ ÁN và là loại hình căn hộ được MONG CHỜ NHẤT DỰA ÁN.
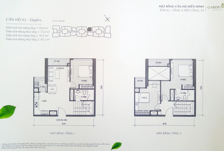
* Căn hộ Duplex:
Số lượng: 36 căn
Diện tích: 102,2 m2
Đối với những Khách hàng cư dân, sở hữu căn hộ làm tổ ấm, nơi an cư lâu dài không chỉ là nơi để về, nơi dừng chân sau giờ làm việc mà còn là nơi hưởng thụ, thư giãn và… thể hiện đẳng cấp thì những căn Duplex tại Vinhomes Gardenia chính là lựa chọn đúng đắn nhất.
LIÊN HỆ NGAY:
ĐẠI LÝ PHÂN PHỐI CHÍNH THỨC DỰ ÁN VINHOMES GARDENIA MỸ ĐÌNH
HOTLINE: 0981.261.261





